Please complete the form below and a member of staff will be in touch shortly.
No problem, our trusted advisors are waiting to help you value your home and get started finding eager buyers.
Please complete the form below and a member of staff will be in touch shortly.
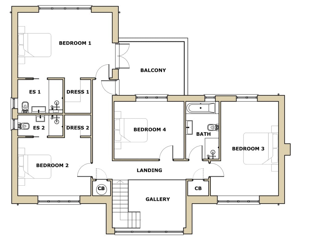
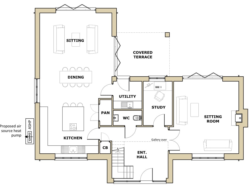
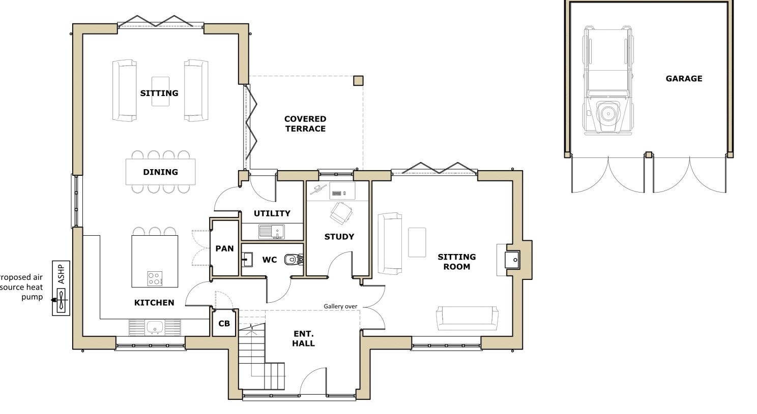
** GUIDE PRICE £220,000 TO £225,000** **REVISED PLANNING PERMISSION GRANTED** A wonderful opportunity to acquire a single building plot along with a paddock of adjoining land, altogether measuring a total of around 2.2 acres (subject to measured survey). The area of development (around 0.2 of an acre in size) makes provision for the construction of a 4 bedroom, contemporary, detached home totalling around 2400 sq ft of accommodation along with a detached, double garage. Further details can be obtained: Kings Lynn and West Norfolk Planning Reference – Original planning reference- 23/01376/F, Revised Planning reference - 25/00055/F
Please complete the form below and a member of staff will be in touch shortly.
Instant Chat With Us