Please complete the form below and a member of staff will be in touch shortly.
No problem, our trusted advisors are waiting to help you value your home and get started finding eager buyers.
Please complete the form below and a member of staff will be in touch shortly.
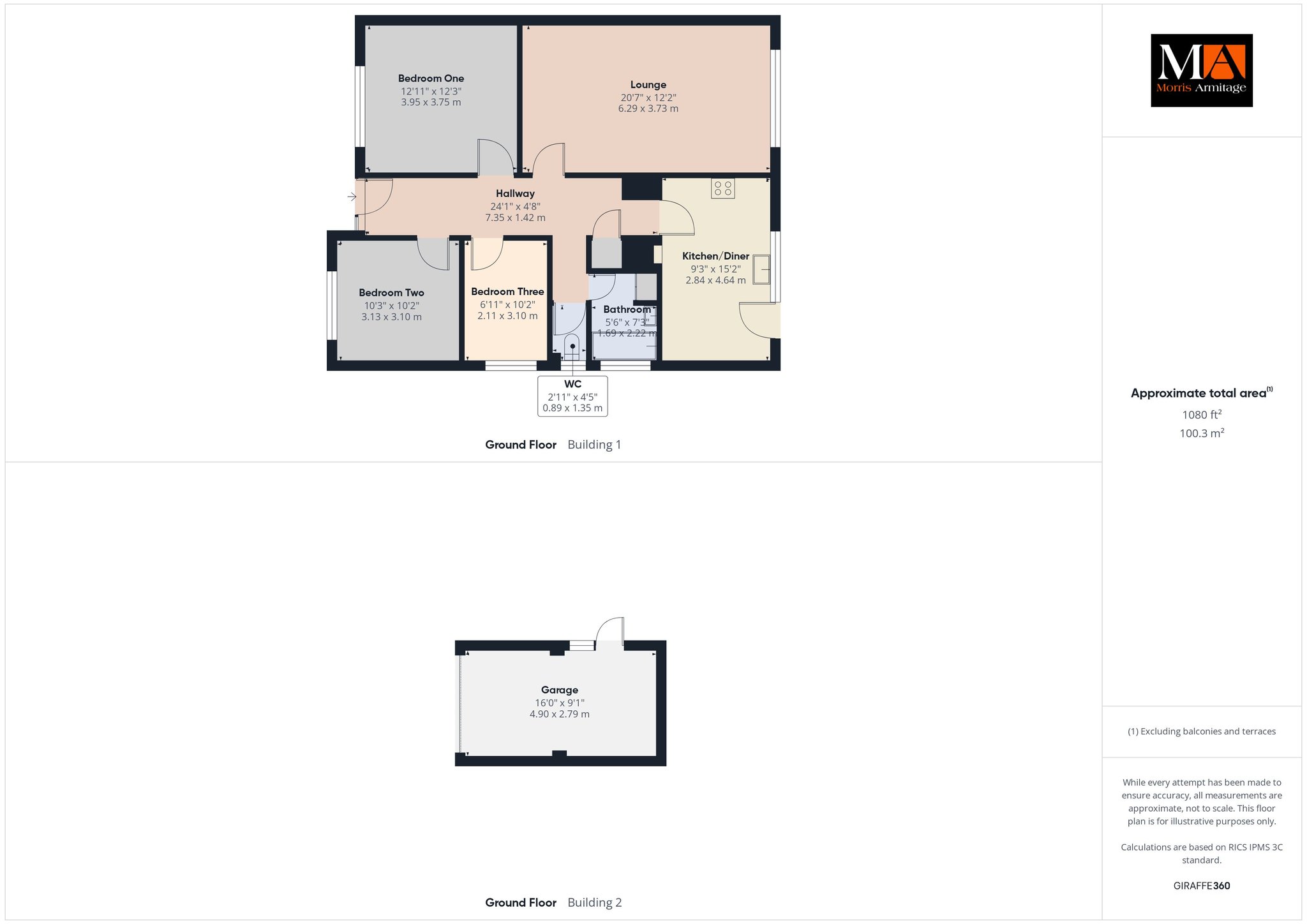
*NO ONWARD CHAIN* The property is situated in a quiet residential cul-de-sac within the village of Watlington. The accommodation includes the spacious entrance hall which serves the property. The lounge is positioned to the rear with a large window overlooking the rear garden, there is also brick display shelving and an electric fire. The kitchen has gloss finish wall and base units and access to the garden. There are three well proportioned bedrooms, one of which has a bank of built in wardrobes and storage. Then there is the bathroom and separate w.c. Externally there is a shingle driveway for off road parking and a garage along with gardens mainly laid to lawn and enclosed by fencing. The village has a main line rail link with fast trains to King’s Lynn, Ely, Cambridge and London Kings Cross together with local amenities including doctors surgery with pharmacy, primary school, post office, village store, The Angel Public House and a fish and chip shop. Watlington is approximately 8 miles south of Kings Lynn and close to the market town of Downham Market.
Accommodation -
uPVC stained glass front entrance door to:-
Entrance Hall
Wall mounted single panel radiator, loft access, door to storage cupboard, textured and coved ceiling, doors to all rooms.
Lounge 20’7” x 12’2” (6.29m x 3.73m)
uPVC double glazed window to rear, wall mounted double panel radiator, brick built display shelving with electric fire inset, textured and coved ceiling.
Kitchen/Diner 15’2” x 9’3” (4.64m x 2.84m)
uPVC double glazed window and door to rear garden, wall and base units under round edge worksurfaces, 1 1/2 stainless steel sink drainer inset with mixer tap over, 4 ring electric hob inset to worksurface with stainless steel extractor over and oven under, space for fridge/freezer, space for washing machine, integral slimline dishwasher, free standing gas central heating boiler, lino style flooring, textured and coved ceiling with spotlights.
Bedroom One 12’11” x 12’3” (3.95m x 3.75m)
uPVC double glazed window to front, wall mounted single panel radiator, built in wardrobes and storage, textured and coved ceiling.
Bedroom Two 10’3” x 10’2” (3.13m x 3.10m)
uPVC double glazed window to front, wall mounted single panel radiator, textured and coved ceiling.
Bedroom Three 10’2” x 6’11” (3.10m x 2.11m)
uPVC double glazed window to side, wall mounted single panel radiator, textured and coved ceiling.
Bathroom
uPVC double glazed window to side, wall mounted heated towel rail, panelled bath with mixer tap and shower attachment over, pedestal handwash basin, door to airing cupboard housing hot water cylinder and shelving, laminate style flooring, textured and coved ceiling, tiled walls.
W.C.
uPVC double glazed window to side, concealed cistern w.c., tiled walls and flooring, textured and coved ceiling.
Outside
The front of the property is laid to shingle with a range of bushes and shrubs inset with a path leading to the front entrance door. The shingle driveway to the side provides off road parking and leads to the garage. The rear garden is laid to lawn with bushes and shrubs to borders with a patio inset and all enclosed by fencing.
Agents Notes:
The property has mains gas central heating and mains drainage/sewerage.
Please complete the form below and a member of staff will be in touch shortly.
Instant Chat With Us