Please complete the form below and a member of staff will be in touch shortly.
No problem, our trusted advisors are waiting to help you value your home and get started finding eager buyers.
Please complete the form below and a member of staff will be in touch shortly.
This three-bedroom detached family home is ideally situated in a popular residential area of Downham Market, conveniently located close to local schools. The property offers well-presented accommodation throughout and enjoys a pleasant outlook over a green area to the front. The accommodation comprises an entrance hall, cloakroom, spacious lounge, and a modern kitchen/dining room with patio doors leading to a conservatory. Upstairs, there are three bedrooms, with the main bedroom benefiting from built-in wardrobes and an en-suite shower room, along with a family bathroom. Outside, the property offers a low-maintenance rear garden, ideal for outdoor dining and relaxation. A driveway provides off-road parking and leads to a single garage. This lovely home offers an excellent opportunity for families or professionals looking to live in a well-connected and desirable part of Downham Market, within easy reach of the town centre and train station, offering direct links to Ely, Cambridge, and London King’s Cross.
Accommodation -
Part glazed uPVC entrance door leading to:-
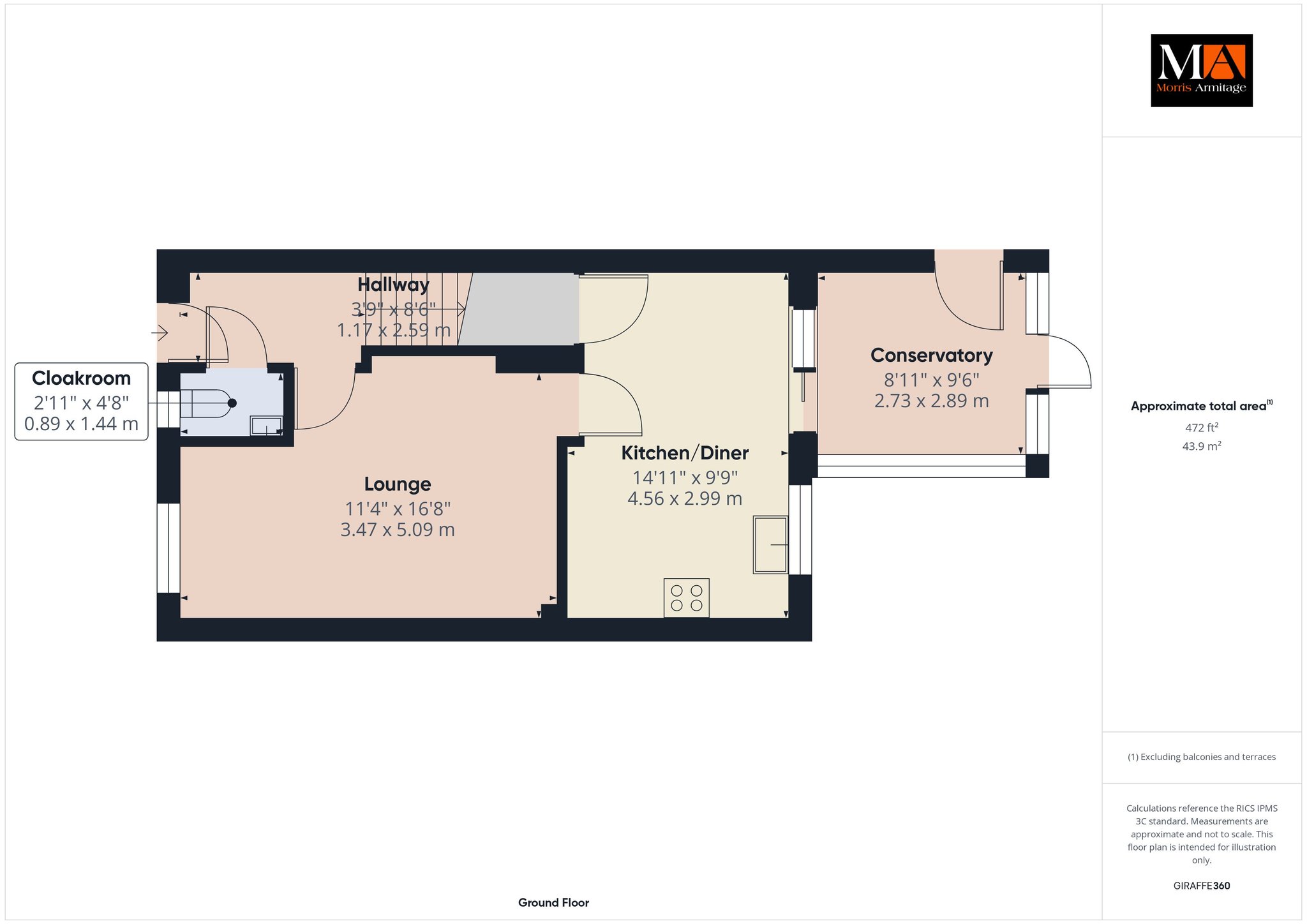
Entrance Hall
Wall mounted radiator, stairs to first floor landing.
Cloakroom
Low level w.c., handwash basin, wall mounted radiator, uPVC double glazed window to front.
Lounge 16’8” x 11’4” (5.09m x 3.47m)
Wall mounted radiator, uPVC double glazed window to front.
Kitchen/Diner 14’11” x 9’9” (4.56m x 2.99m)
Matching wall and base units with worktop over, 1 1/2 bowl stainless steel sink drainer, gas hob with electric oven under and extractor over, space for washing machine, storage cupboard, uPVC double glazed window and patio door to:-
Conservatory 9’6” x 8’11” (2.89m x 2.73m)
Doors to garden and garage.
First Floor Landing
Airing cupboard, loft hatch, uPVC double glazed window to side.
Bedroom One 9’10” x 8’10” (3.02m x 2.71m)
Built in double wardrobe, uPVC double glazed window to front, wall mounted radiator.
En-Suite
Shower cubicle, low level w.c., handwash basin, wall mounted radiator, uPVC double glazed window to side, extractor fan.
Bedroom Two 9’11” x 8’2” (3.04m x 2.51m)
Wall mounted radiator, uPVC double glazed window to rear.
Bedroom Three 9’2” x 6’6” (2.81m x 1.99m)
Wall mounted radiator, uPVC double glazed window to rear.
Bathroom
Panelled bath, low level w.c., handwash basin, wall mounted radiator, uPVC double glazed window to side, extractor fan.
Outside
To the front of the property there is parking which leads to the garage along with an EV charging point. To the rear of the property there is a low maintenance garden with patio and stone chipped areas along with a gate to the front.
Please complete the form below and a member of staff will be in touch shortly.
Instant Chat With Us