Please complete the form below and a member of staff will be in touch shortly.
No problem, our trusted advisors are waiting to help you value your home and get started finding eager buyers.
Please complete the form below and a member of staff will be in touch shortly.
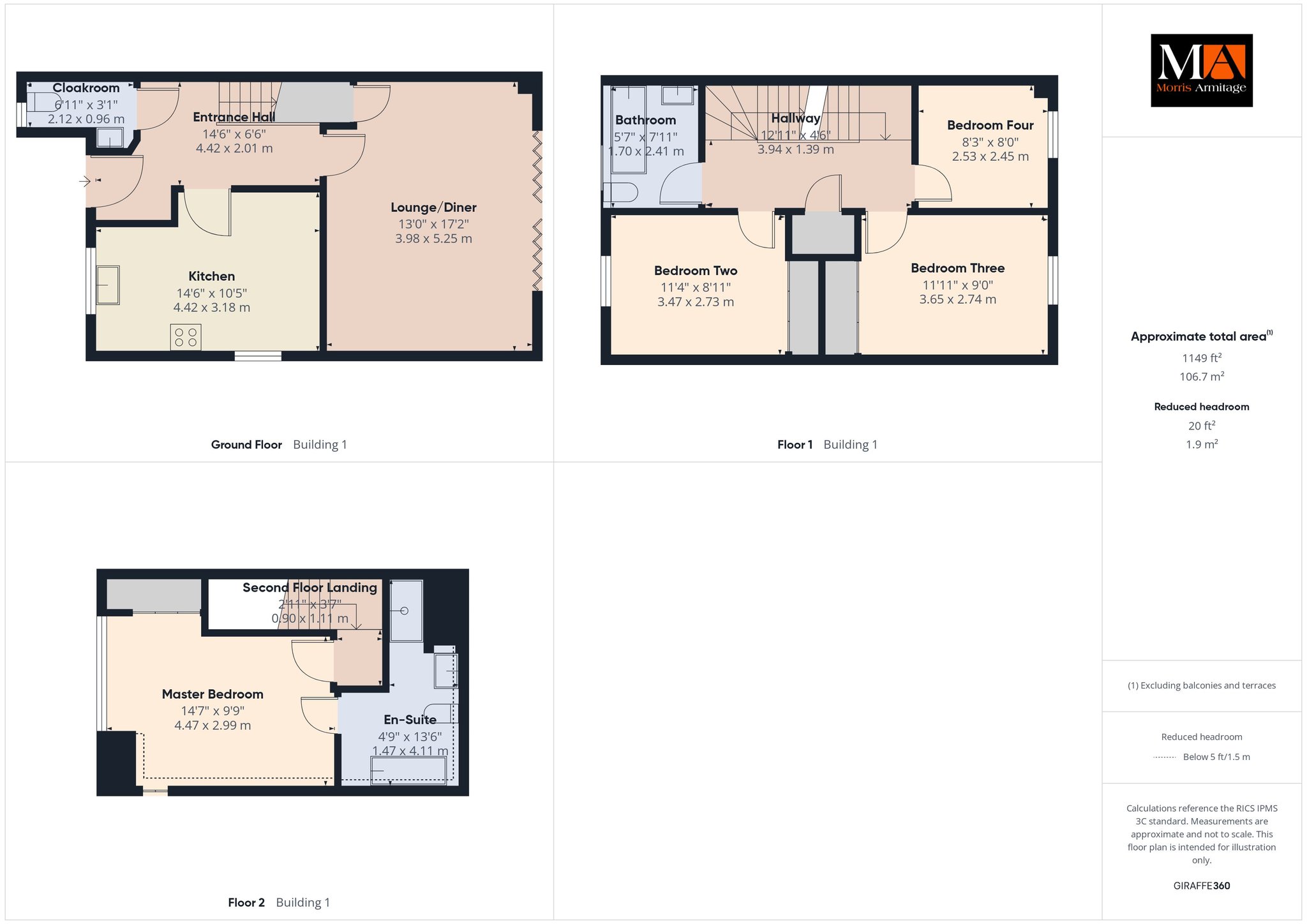
An immaculately presented four bedroom semi-detached townhouse with good access to the towns amenities and also the train station on the King’s Lynn to London King’s Cross line via Cambridge. The accommodation includes the entrance hall which leads to the kitchen with gloss finish wall and base units and integral appliances. The lounge/diner has tri-fold doors to the rear garden. The cloakroom completes the ground floor. The first floor landing provides access to the three bedrooms, two of which have built in wardrobes and a bathroom. The second floor landing leads to the master bedroom with built in wardrobes and spacious en-suite. The gardens are mainly laid to lawn, west facing and private with a patio and outside office. The electric vehicle charging point is conveniently positioned to reach the two allocated parking spaces to the rear.
Accommodation -
uPVC part glazed front entrance door to:-
Entrance Hall
Wall mounted single panel radiator, laminate style flooring, stairs to first floor, doors to all rooms.
Lounge/Diner 17’2” x 13’0” (5.25m x 3.98m)
uPVC double glazed tri-fold doors to rear, door to under stairs storage cupboard, 2 x wall mounted single panel radiator, laminate style flooring, ceiling spotlights.
Kitchen 14’6” x 10’5” (4.42m x 3.18m)
uPVC double glazed window to front and side, wall mounted single panel radiator, gloss finish wall and base units under square edge worksurfaces, 1 1/2 stainless steel sink drainer inset with mixer tap over, 4 ring hob inset to worksurface with extractor over and oven under, integral microwave oven, space for washing machine, integral dishwasher, laminate style flooring, ceiling spotlights, wall mounted gas central heating boiler.
Cloakroom
uPVC double glazed window to front, wall mounted single panel radiator, w.c., handwash basin inset to vanity unit, laminate style flooring, ceiling spotlights and extractor.
First Floor Landing
Stairs to second floor, door to airing cupboard housing hot water cylinder and shelving, doors to three bedrooms and a bathroom.
Bedroom Two 11’4” x 8’11” (3.47m x 2.73m)
uPVC double glazed Juliet window to front, wall mounted single panel radiator, built in wardrobes and sliding mirrored doors, ceiling spotlights.
Bedroom Three 11’11” x 9’0” (3.65m x 2.74m)
uPVC double glazed window to rear, wall mounted single panel radiator, built in wardrobes with sliding mirrored doors, ceiling spotlights.
Bedroom Four 8’3” x 8’0” (2.53m x 2.45m)
uPVC double glazed window to rear, wall mounted single panel radiator.
Bathroom
uPVC double glazed window to front, wall mounted heated towel rail, “p” shaped panelled bath with mixer tap and shower over with glass shower screen, w.c., handwash basin inset to vanity unit, tiled flooring, partly tiled walls, ceiling spotlights and extractor.
Second Floor Landing
Access to the master bedroom and en-suite.
Master Bedroom 14’7” x 9’9” (4.47m x 2.99m)
uPVC double glazed window to front, wall mounted single panel radiator, built in wardrobes and storage, door to eaves storage, 2 x wall mounted single panel radiators, ceiling spotlights, loft access, door to:-
En-Suite
uPVC double glazed Velux style window to rear, wall mounted heated towel rail, round edge central bath with mixer tap and shower attachment, w.c., handwash basin inset to vanity unit, recessed storage shelving with shaver socket, double shower with glass door and inset shelf storage, partly tiled walls, ceiling spotlights and extractor.
Outside
To the front of the property it is laid to lawn enclosed by white picket fence with a path leading to the front entrance door. The rear garden is mainly laid to lawn with a patio inset with a fully insulated outside office with power and light. There is also a further area laid to patio at the side with metal storage shed. Then there is an electric vehicle charging point and a gate leads out to the rear where there is two allocated parking spaces.
Agents Notes:
The property has mains gas central heating and is on mains drainage/sewerage. There is a service/maintenance charge for the property and the current owners pay approx. £30.00 a month.
Please complete the form below and a member of staff will be in touch shortly.
Instant Chat With Us