Please complete the form below and a member of staff will be in touch shortly.
No problem, our trusted advisors are waiting to help you value your home and get started finding eager buyers.
Please complete the form below and a member of staff will be in touch shortly.
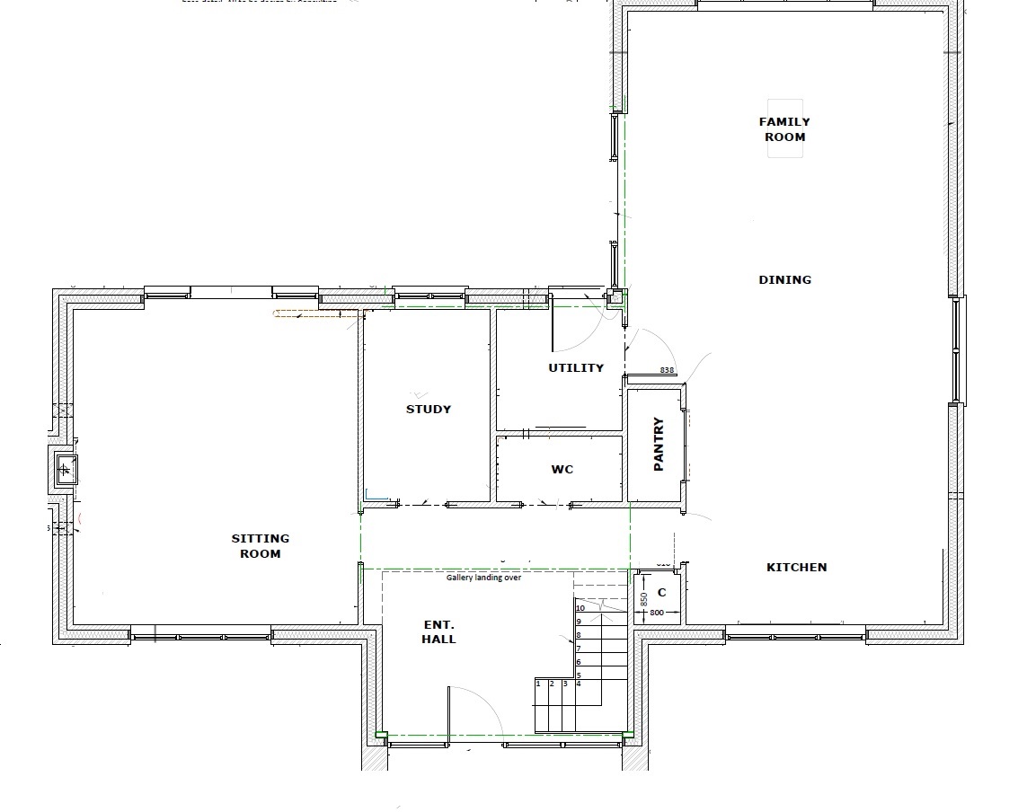
An absolutely stunning, detached, individually designed and constructed home positioned in front of the Well Creek, and enjoying far reaching field views to the rear. Boasting both a contemporary style and a luxurious finish, the house provides around 220 square metres of living accommodation that centres around an enviable, open entrance hall with galleried landing above, both of which appreciate floor to ceiling glass to the front aspect.
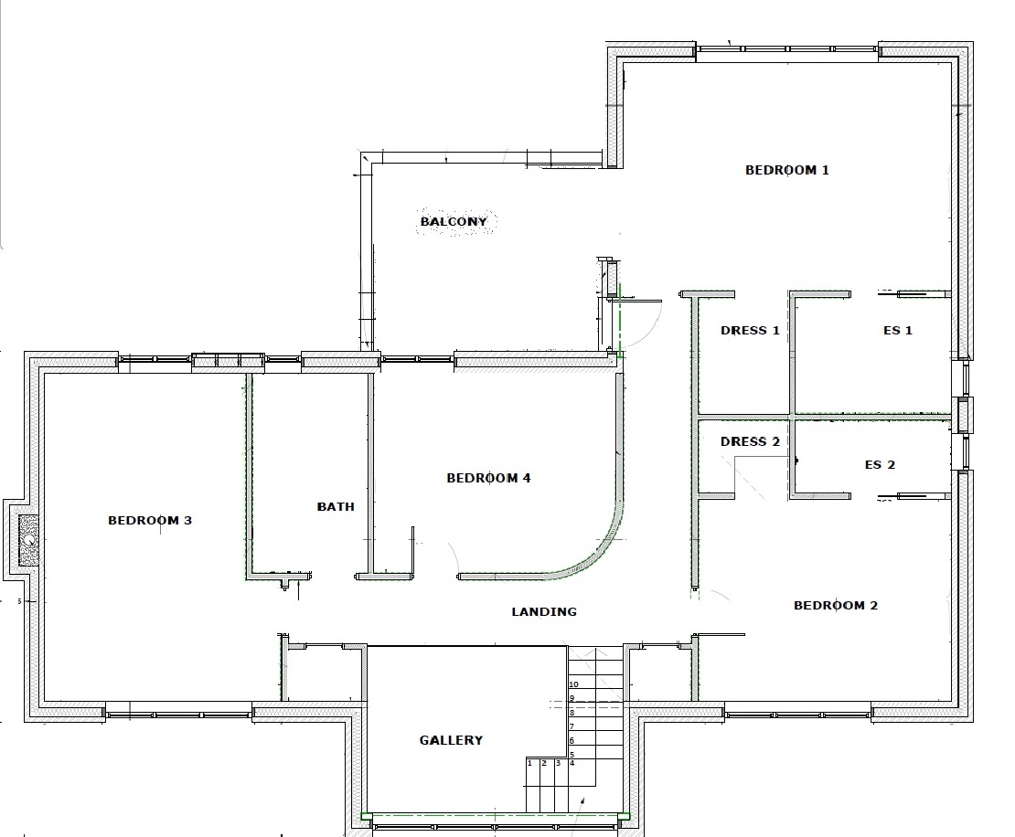
Downstairs, the layout provides for wonderful levels of light living space ideal for modern living. Extending from the front to the back, the kitchen, dining and family room extends to over 10 metres in length culminating in folding doors that open to the rear. There is an additional, separate living room appreciating a triple aspect along with an additional study room, utility and cloakroom. Upstairs, the 4 bedrooms are also all very well proportioned with 2 having their own en-suite facilities. In particular, the Master bedroom measures more than 5 metres square and this has been carefully designed to incorporate a walk–in dressing room along with a walk-out area to the balcony where the views are magnificent.
All-in-all, the plot measures around 1/4 of an acre (subject to measured survey), largely comprising of an enclosed rear garden which stretches down to the adjoining fields and farmland. To the front, there is plentiful levels of parking along with a detached double garage.
The build is well underway and is expected to be completed toward the end of 2025. Presented here are the first, digitally generated images to provide a true indication as to the appearance of this home. Details regarding the finishes and specifications will also become available in the near future.
Accommodation -
Ground Floor
Entrance Hall
Kitchen/Family Dining Room: 10.5m x 5.4m
Utility: 2.15m x 2.075m
Study: 3.3m x 2.175m
Cloakroom: 2.15m x 1.125m
Sitting Room: 5.4m x 4.875m
First Floor
Galleried Landing
Bedroom 1: 5.4m x 5.1m
(En-suite, Dressing Room & Balcony)
Bedroom 2: 4.175m x 3.25m
(En-suite & Dressing Room)
Bedroom 3: 5.4m x 3.3m
Bedroom 4: 3.99m x 1.9m
Family Bathroom: 3.3m x 1.9m
Agents Notes:
All measurements are taken from design plans rather than from the building itself.
Please complete the form below and a member of staff will be in touch shortly.
Instant Chat With Us