Please complete the form below and a member of staff will be in touch shortly.
No problem, our trusted advisors are waiting to help you value your home and get started finding eager buyers.
Please complete the form below and a member of staff will be in touch shortly.
A simply stunning, and quite substantial, individual property boasting around 4,500 square feet of accommodation which has been renovated to an extremely high and enviable standard. Setback within its own stunning grounds that measure around 2 acres in total it also boasts various outbuildings and garages that include a magnificent timber frame building providing 1400 square feet of external offices and studio. Over the last 20 years, the property has been transformed into a successful family home, increasing the level of living accommodation whilst maintaining a traditional, elegant feel and much of its originality. Part of this accommodation includes an extremely spacious, self-contained annexe to the rear which provides more of a contemporary aspect to the property. The formal reception rooms are all positioned to the front of the house and all have high ceilings, ornate cornicing, Victorian style radiators, and tall casement windows that allow the natural levels of light to flood through. All of these windows have been sympathetically replaced throughout. Further to the rear, more practical and enjoyable rooms can be found that includes the main kitchen which has been replaced to a high specification design and finish including solid granite worksurfaces. This incredible standard and attention to detail also has been applied within the boot room and reception lobbies which also have the same style of storage built-in. More recreational space exists to the side where a garden room is positioned with wood burning stove adding a cosy feel under a high, vaulted ceiling. Upstairs, there are 5 bedrooms and the majority of these are particularly large. Serving these are 2 bathrooms, the finish of each has to be seen to be fully appreciated. The attic above has also been finished to become a further, fully heated, usable space. The house itself is barely visible from the Village Road that runs along its wide frontage. A long driveway sweeps down to the front and traditional lawns and recreational areas surround. There are many focal points including a large pond with seating areas surrounding and a traditional fountain that creates a circular front driveway. Around to the rear, the levels of parking available is quite exceptional and directly beyond the property, the peace and openness of the views across the local common land can really be admired. Its function as a real lifestyle home is also reinforced with the existence of the outdoor swimming pool which is used year-on-year. More recently, a pool house has been erected along with a 6 bay garage/coach house with rooms over which are waiting for the new purchasers to finish to their own style and function.
Little exists nearby that compares to this beautifully maintained, multi-functional home – internal viewing is highly, highly recommended.
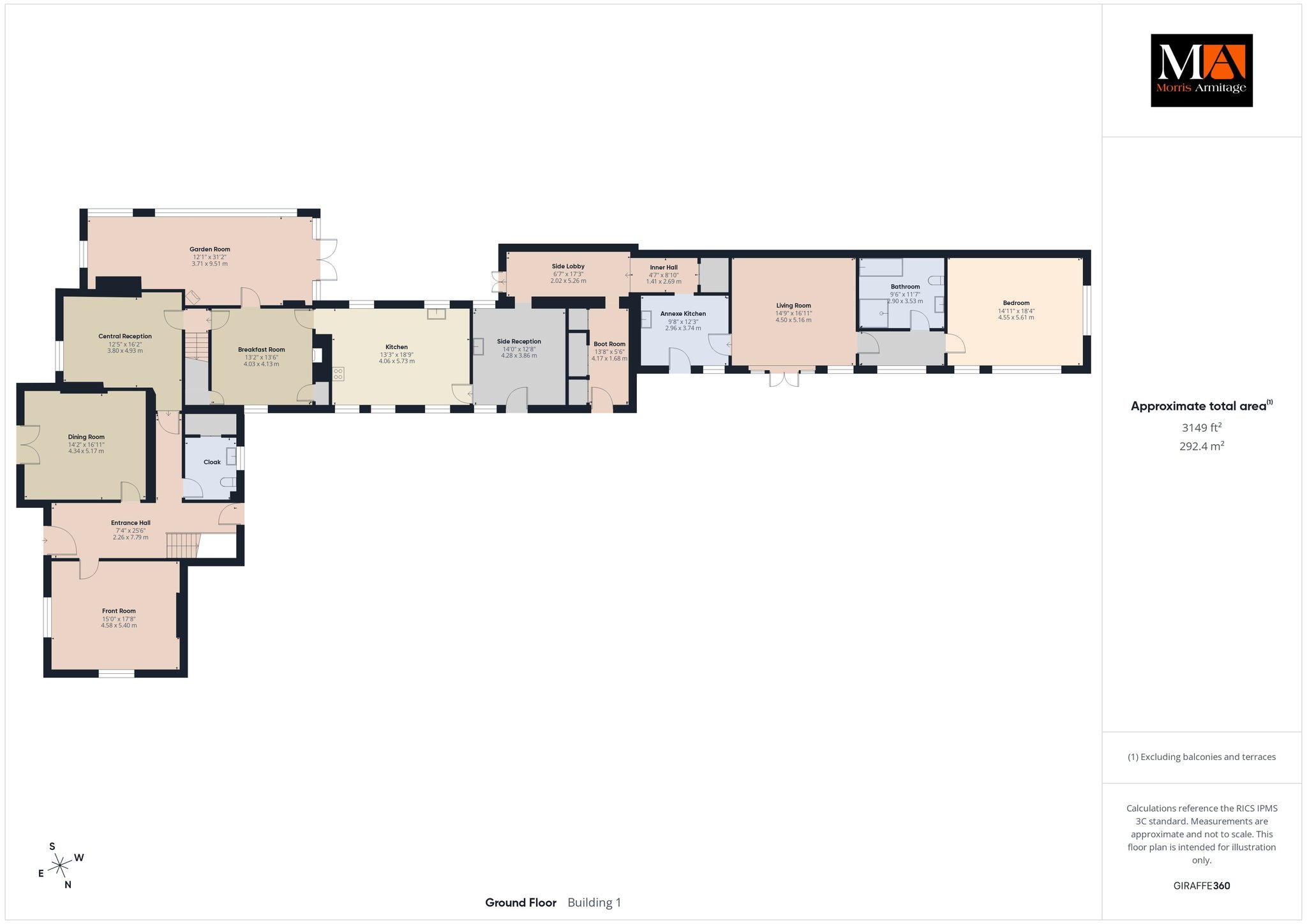
Accommodation -
Covered front entrance door opening to:-
Entrance Hall
A spacious, welcoming space extending around to the central reception room. The floors are tiled throughout the downstairs and the tall ceilings are finished with cornices and ceiling roses. A turning staircase leads to the first floor and a part glazed door gives access through to the rear.
Front Room 17’8” x 15’0” (5.40m x 4.58m)
A double glazed casement window overlooks the side and a large central fireplace contains and inset wood burning stove. A pair of double glazed patio doors with side shutters open to the front. Similarly tall ceilings with centre rose and cornices.
Dining Room 16’11” x 14’2” (5.17m x 4.34m)
Central to the room is a cast iron fireplace with a period, timber surround. Twin, glazed patio doors with side shutters open to the front. Centre rose and cornices to the ceiling.
Downstairs w.c.
Double glazed casement window to the rear, high level w.c., double doors opening to storage cupboard, handwash basin inset to an oak storage unit.
Central Reception Room 16’2” x 12’5” (4.93m x 3.80m)
A double glazed casement window overlooks the front and to the centre of the room there is a cast iron fireplace.
Side Lobby
Set between the central reception room and breakfast room, an additional straight staircase extends to the upstairs.
Breakfast Room 13’6” x 13’2” (4.13m x 4.03m)
To the centre is a large open fireplace with a cast iron stove inset. A casement window overlooks the side and there are two storage spaces to either side.
Garden Room 31’2” x 12’1” (9.51m x 3.71m)
Situated to the side, this space is flooded with natural light with rows of windows overlooking a small area of garden. The vaulted ceiling has exposed framework and window lights. To one corner is a cylindrical, freestanding wood burning stove. There are double opening, glazed doors opening to a patio.
Kitchen 18’9” x 13’3” (5.73m x 4.06m)
Beautifully fitted with a bespoke range of traditionally designed storage units, dressers and pantry cabinets. Solid granite worksurfaces provide generous levels of preparation space and also forms the window sills of the multiple double glazed casement windows that overlook both side aspects. The kitchen also has the practicality of a large “Everhot” range, inset twin bowl butler sink along with integral dishwasher and fridge/freezer.
Side Reception 14’0” x 12’8” (4.28m x 3.86m)
Access from the rear via stable style doors, a very practical useable room fitted with a row of bespoke, hand made storage and cloak cupboards to one side. To the other side are further matching storage units with granite worktops and twin bowl butler sink inset.
Side Lobby 17’3” x 6’7” (5.26m x 2.02m)
A further area filled with more bespoke, storage drawers and granite work surfaces with two additional storage dressers. This room also continues giving access through to the utility and rear annexe. A utility cupboard houses space for washing machine and tumble drier.
Boot Room
Coat hanging space and side access via stable style door. There are built in cupboards to the side, one of which houses the tank and mechanics for the hot water system.
First Floor Landing
The split level landing extends throughout the first floor with steps separating between. Overlooking the main staircase is a large, double glazed casement window overlooking the rear.
Bedroom One 17’3” x 14’11” (5.28m x 4.55m)
Double glazed casement windows overlook both front and side aspects while to the centre there is the original recessed, ornamental fireplace. Set into the ceiling is air conditioning.
Bedroom Two 16’2” x 12’7” (4.94m x 3.84m)
Central, ornamental, cast iron fireplace, double doors opening to storage wardrobe, ceiling spotlights and air conditioning, double glazed casement windows to both the front and side.
Bedroom Three 14’3” x 11’0” (4.35m x 3.37m)
Currently configured as a dressing room with five sets of double wardrobes. Also built into the room is a dressing table with a storage drawers to either side, twin storage cabinets and mirror.
Bedroom Four 11’8” x 6’10” (3.57m x 2.09m)
Double glazed casement window overlooking the rear.
Main Bathroom
Individually designed and featuring a vanity unit with granite worksurfaces housing “his and hers” sinks, storage cupboard, concealed cistern w.c., twin mirrors and shelving over. The raised jacuzzi bath overlooks the front through the double glazed casement window and the tiled surround houses a television.
Bedroom Five 17’3” x 13’11” (5.27m x 4.26m)
Double glazed casement windows to the side, row of double, recessed wardrobes, further built in wardrobe and air conditioning to the ceiling.
Second Bathroom
Again, individually created featuring a vanity area with twin mirrors, granite worksurfaces, storage drawers and cabinets, concealed cistern w.c. and handwash basin. There is full tiling to walls and floors along with a jacuzzi bath and separate walk in shower.
Attic Space 27’1” x 8’5” (8.27m x 2.57m)
Leading from the landing, an electronically operated loft ladder can appear that leads up to the attic. With low walls and vaulted, lower ceilings this are has been fully lined, plastered and had heating and air conditioning installed. It enjoys double glazed, casement windows to each of the three gables.
Annexe
Part glazed stable style door opening to:-
Kitchen 12’3” x 9’8” (3.74m x 2.96m)
Double glazed casement window to the side, fitted with a generous range of bespoke, contemporary fitted storage with granite worksurfaces. There are also taller storage cabinets and inset composite sink.
Living Room 16’11” x 14’9” (5.16m x 4.50m)
Raised ceiling with inset spotlights, tiled flooring throughout, double glazed casement window to side, full width double glazed double opening windows to side.
Inner Hall
Double glazed casement window to side, access provided to both bathroom and bedroom.
Bedroom
Double glazed casement windows overlook both the side and to the rear overlooking the common. The raised ceiling has spotlights and the room is air conditioned.
Bathroom 18’4” x 14’11” (5.61m x 4.55m)
A luxurious space boasting both bath and walk in double width shower cubicle. To one side is a bank of fitted storage drawers and cabinets with concealed cistern w.c. and handwash basin.
Outside
Spreading across the front of this village road, mature Laurel trees shield the property from the road with the addition of iron railings. The sweeping driveway is accessed via electric gates and twin pillars and ravels down past further hedging opening to the spectacular front driveway which circles the impressive fountain. The grounds total approximately 2 acres in size and these provide various sections of outside space. The traditional gardens are positioned more toward the front and this sizeable space provide manicured lawns and grounds all screened with mature shrubbery to the sides along with mature trees. To the opposing side of the driveway, there is a further enclosed space housing a glass house with plenty of area around to create a kitchen garden. A large pond has been created, and this expansive feature enjoys further fountains within as well as having seating space and pathways surrounding. The external studios overlook a further area of garden, and a patio continues to the rear forming more of a courtyard area. Directly behind the property, there is a large area of private parking with space for multiple vehicles large and small to stand with ease. A small er area of lawn leads directly to the rear of the house. The heated, external swimming pool is sited to the side. This is a very usable, large pool which is fully filtered and covered. This is set between two of the recently constructed buildings. These are both almost completed but are being left as they are for any prospective purchaser to finish to their own style and function.
Pool House 20’9” x 13’5” (6.33m x 4.11m)
A single storey building which has been erected for use as external, entertaining and changing area.
Coach House
Designed to produce 4 open parking bays along with 2 enclosed bays acting as double garaging. Stairs lead up to the floor above where there are 2 sectioned areas ideal for creating further storage or working areas. Further potential for this building could also be explored.
Further Outbuildings
To the southern side of the property, there are 2 other buildings. Leading from the courtyard, there is a hobby room or further office measuring over 12ft x 12ft in size. Most impressively, the standalone, timber framed offices and studio reads as follows:
Offices/Studios
This attractive, substantial, oak framed building has been used as an external office and studio space.
Ground Floor 38’5” x 19’1” (11.72m x 5.82m)
Oak, double glazed windows and patio doors wrap around the building whilst inside, one area features a kitchen area with sink and granite worksurfaces along with a breakfast bar. There is access through to the recessed storage area running along to the rear as well as a separate toilet.
First Floor 38’8” x 12’11” (11.81m x 3.94m)
A large open plan space under a vaulted ceiling culminating in solid oak doors that open to a pleasant side balcony. There are additional windows and to the centre, a floor to ceiling oak window overlooking the grounds.
Please complete the form below and a member of staff will be in touch shortly.
Instant Chat With Us