Ash Grove, Burwell, Cambridge

£200,000 Offers Over

Need to sell first?

No problem, our trusted advisors are waiting to help you value your home and get started finding eager buyers.

Share This property

Property Details

Property Summary

A superb opportunity to purchase a greatly improved end of terrace bungalow situated on a generous corner plot. Located within this attractive complex, conveniently situated for Burwell’s amenities and thriving community. A courtyard style arrangement of beautifully maintained gardens with adjacent parking with easy access to the complex facilities.

The property has been greatly improved throughout, accommodation comprising of an entrance hall, living/dining room, conservatory, a refitted integrated kitchen with fitted appliances, 2 bedrooms and a modern refitted shower room.

Positioned on a desirable corner plot, boasting a delightful, private low maintenance rear garden with garden shed (with power and light connected) and useful side access providing secure storage/access for a mobility vehicle.

Further benefits include warden control alert assistance facilities throughout the property, double glazing and replacement Economy 7 night storage heating.

An age restriction of 55 years is in place for residents.

Viewing Highly Recommended - NO CHAIN

Full Details

A quite superb opportunity to purchase a greatly improved end of terrace bungalow tucked away within this modern and attractive complex which is situated conveniently for Burwell’s local amenities and thriving community. Located in a courtyard style arrangement of beautifully maintained gardens and benefits from well-proportioned, well-presented and tastefully decorated accommodation and adjacent parking with easy access to the complex facilities.

Accommodation Details
Front door leads to:

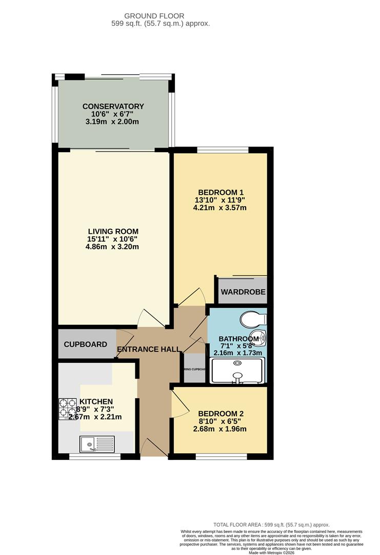
Entrance Hall
With doors leading to the kitchen, living room, both bedrooms and bathroom. Built-in storage cupboard. Storage heater.

Living Room 4.80m x 3.20m (15'8" x 10'5")
Generous living room with sliding glazed doors leading to the conservatory. Storage heater. Door leading to the entrance hall.

Conservatory
With French doors leading to the rear garden. Sliding glazed doors leading to the living room. Tiled flooring.

Kitchen 2.70m x 2.20m (8'10" x 7'2")
Modern kitchen comprising of a matching range of base and eye level units with work surfaces over, stainless steel sink and drainer. Integrated Bosch combi electric oven and microwave with separate hob and extractor hood, undercounter fridge, washing machine and slimline dishwasher. Window to front aspect. Door to the entrance hall.

Bedroom 1 4.30m x 2.70m (14'1" x 8'10")
With built-in mirror fronted wardrobes. Storage heater. Window to rear aspect. Door leading to the entrance hall.

Bedroom 2 2.70m x 2.00m (8'10" x 6'6")
With window to the front aspect. Storage heater. Door leading to the entrance hall.

Bathroom 2.20m x 1.70m (7'2" x 5'6")
Fitted with a double walk in shower, vanity wash hand basin with storage cupboard under, low level WC, tiled walls, emergency pull cord, heated towel rail, extractor fan and mirrored wall hung cabinets

Outside
Small patio with French doors leading to the conservatory. Slate area with bedding area for plants, garden shed with power and light connected. Access gate to the side offering easy access for a mobility scooter, which can be stored and charged in the shed.

PROPERTY INFORMATION
Maintenance Fees - £3576/annum
EPC - D
Tenure - Leasehold - 66 years remaining
Council Tax Band - C (East Cambs)
Property Type - End of Terrace Bungalow
Property Construction – Standard
Number & Types of Room – Please refer to the floorplan
Square Meters - 51 SQM
Parking – Allocated
Electric Supply - Mains
Water Supply – Mains
Sewerage - Mains
Heating sources - Electric
Broadband Connected - tbc
Broadband Type – Superfast available 62Mbps download, 12Mbps upload
Mobile Signal/Coverage – Ofcom advise likely on all networks
Rights of Way, Easements, Covenants – None that the vendor is aware of

Location
Burwell, a charming village in Cambridgeshire, is known for its traditional character and community spirit. It features a range of local shops including a convenience store, a bakery, and several pubs, alongside essential amenities such as a primary school, post office, and a health centre. The village offers a picturesque setting with beautiful countryside walks and nearby parks. It's located approximately 10 miles from Cambridge city centre, making it accessible for those commuting to the city, and around 5 miles from the market town of Newmarket, famous for its horse racing. Overall, Burwell balances rural tranquillity with convenient access to urban facilities.

Floorplans

EPCs

Retirement Property
1 Bathroom(s)
2 Bedroom(s)

Interested in this property?